Prio 143 Modern
Einstöckiges Haus mit 4 Schlafzimmern und offenem Grundriss im modernen Stil
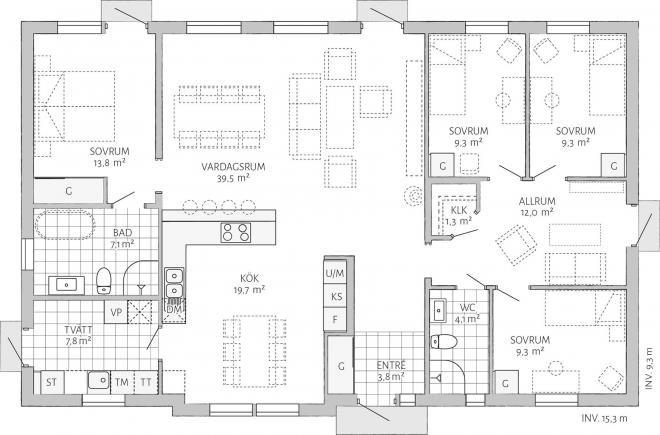
Eine reduzierte und elegante Fassade macht Prio 143 Modern zu einem unserer beliebtesten Häuser. Prio 143 ist nicht ohne Grund unser meistverkauftes Haus. Hier wird jeder Quadratmeter sonnvoll genutzt, der sowohl für große als auch für kleine Familien mit Kindern geeignet ist. Die 4 Schlafzimmer des Hauses sind aufgeteilt, zwei für Erwachsene und zwei für Kinder oder Gäste an jedem Ende des Hauses. In der Mitte werden Wohnzimmer und Küche zum natürlichen Treffpunkt.


