Prio 129 Industrial
Stilvolles einstöckiges Haus für die kleinere Familie
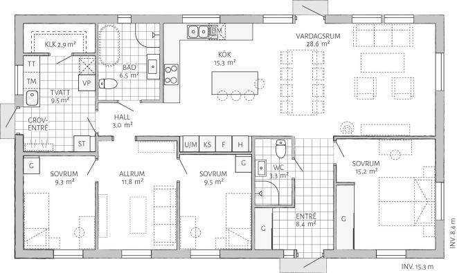
Präzise Details und viel Platz verleihen dem Prio 129 Industrial einen großartigen Charakter. Mit einer Formensprache, die an Künstlerateliers und Scheunen erinnert, passt es sowohl aufs Land als auch in die Stadt. Der Prio 129 ist perfekt für die kleinere Familie. Es ist auch wirklich gut für diejenigen unter Ihnen, die heute in einem großen Haus leben und davon träumen, weniger Räume zu reinigen, aber dennoch viel Platz für gesellschaftliche Veranstaltungen zu haben. Wenn Sie sich für ein Walmdach entscheiden, erhalten Wohnzimmer und Küche ein noch größeres Raumgefühl!


