Prio 116 Traditionell
Angenehmes und gut geplantes einstöckiges Haus im klassischen Stil
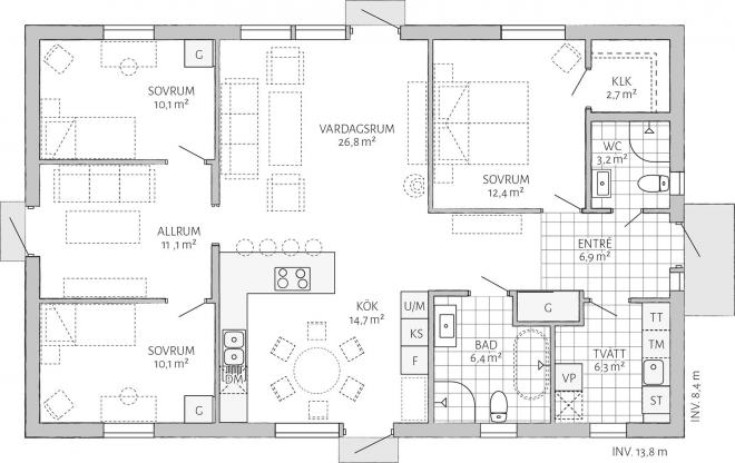
Mit handwerklicher Freude, Balken und weißen Ästen spiegelt Prio 116 Traditional Sicherheit und schwedisches Bauerbe wider. Der Prio 116 ist der kleinste in der Prio-Serie, bietet aber auf kleiner Fläche den nötigen Platz und die nötigen Funktionen. Hier werden Wohnzimmer und Küche zum natürlichen Mittelpunkt und Mittelpunkt des Hauses. Außerdem trennt es den Kinder- und Elternteil des Hauses auf natürliche Weise.


