Prio 116 Industrial
Angenehmes und gut geplantes einstöckiges Haus mit stilvollem Charakter
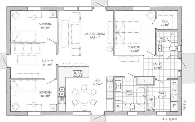
Präzise Details und viel Platz verleihen dem Prio 116 Industrial einen großartigen Charakter. Mit einer Formensprache, die an Künstlerateliers und Scheunen erinnert, passt es sowohl aufs Land als auch in die Stadt. Der Prio 116 ist der kleinste in der Prio-Serie, bietet aber auf kleiner Fläche den nötigen Platz und die nötigen Funktionen. Hier werden Wohnzimmer und Küche zum natürlichen Mittelpunkt und Mittelpunkt des Hauses. Außerdem trennt es den Kinder- und Elternteil des Hauses auf natürliche Weise.


