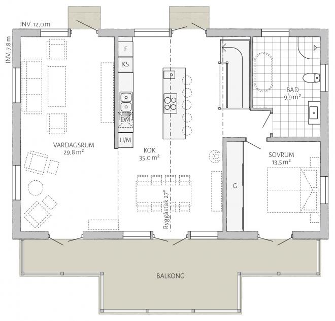
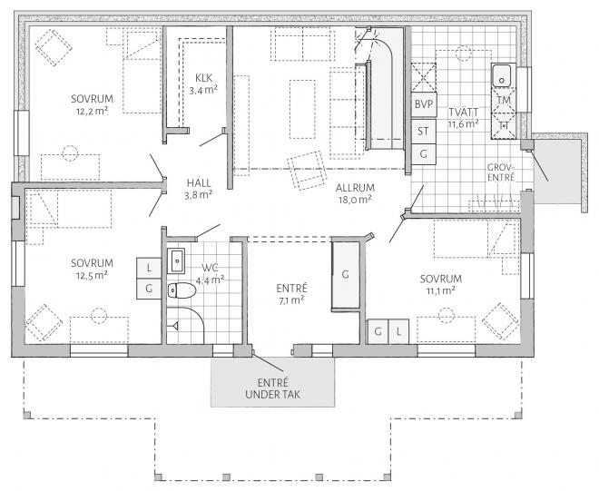
Björkalund
Ein harmonisches Hanghaus, mit einem Balkon über die gesamte Traufseite des Eingangs hinweg. Darunter entstehen, durch diese Konstruktion, beeindruckend große überdachte Terrassenflächen. Durch den Balkon, über die gesamte Gebäudelänge, wirkt das Haus wesentlich größer als es ist. Ein Hanghaus muss sich immer dem Grundstück anpassen und lässt deshalb manchmal wenig Spielraum zu. Dieser Entwurf zeigt eindrucksvoll das, dass nicht immer so sein muss. Zeitlose, schöne schwedische Architektur.


