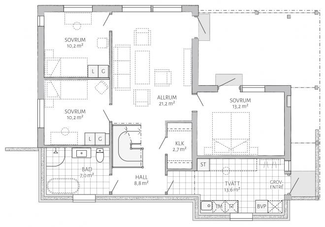
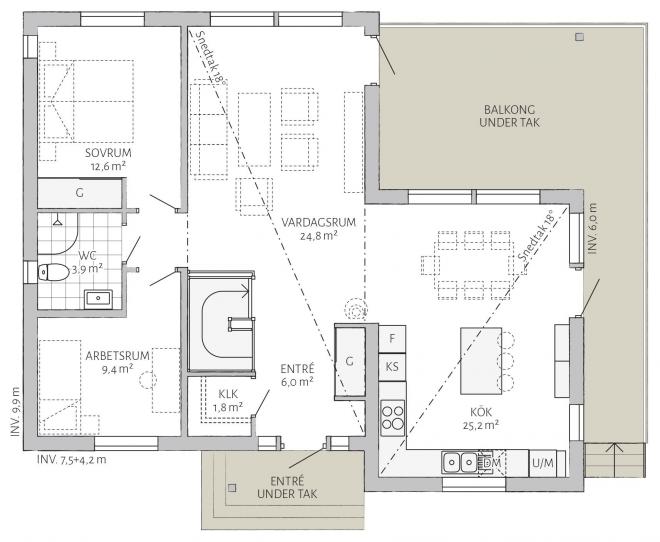
Almvik
Der aufwendig geplante Entwurf ist nicht nur modern, sondern auch durch den gewählten Stil zeitlos. Die im Versatz stehenden Baukörper geben dem Planer Raum für Kreativität und sind zugleich Garant für eine einzigartige Wirkung auf den Betrachter. Das die beiden Baukörper verbindende Pultdach schließt den Balkon komplett mit ein und schafft hier Platz die Natur, zu jeder Jahreszeit, erlebbar zu machen. Die großen Fensterflächen mit Pultdachanschnitt unterstreichen die klare Linienführung und sorgen gleichzeitig für lichtdurchflutete Räume im inneren des Gebäudes.


