Vallvik
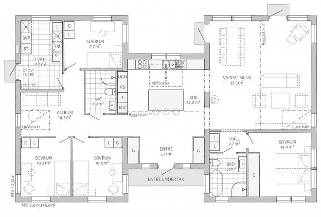
Die drei miteinander verbundenen Baukörper geben diesem Haus einen eigenständigen Charakter, die dem Betrachter eine Geschichte seiner individuellen Bewohner zu erzählen scheinen. Der Mittelteil, über den das Haus auch betreten wird, wirkt durch die Kathedraldecke wie eine große Empfangshalle. Die hier umgesetzte Grundrissidee unterstützt ein harmonisches Miteinander genauso, wie die Rückzugsmöglichkeit jedes einzelnen Mitgliedes der Familie. Die große, sich über die gesamte Hauslänge erstreckende, Terrasse die über den Ess- und Wohnbereich betreten werden kann, erweitert den Lebensbereich in der warmen Jahreszeit.


