Trend Sattel gekoppelter Grarge
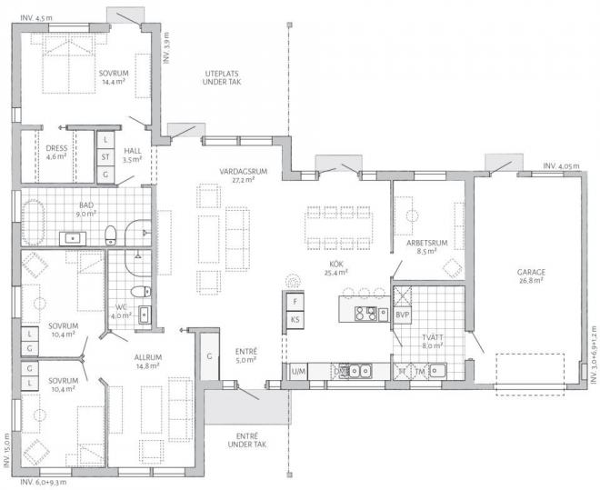
Trend mit Satteldach ist ein gut gestaltetes einstöckiges Haus in hoher Klasse mit intelligentem Grundriss, der Ihren Bedürfnissen im Laufe der Jahre folgt. Das Äußere ist klassisch charmant und mit Satteldächern wird das wohnliche Gefühl verstärkt.
Im Inneren ist Trend einladend mit großzügigen Fenstern, die Licht in große Teile des Hauses streuen. Das Wohnzimmer befindet sich in zentraler Lage im Haus. Es gibt viel Platz für angenehme Momente mit Familie und Freunden. Die Schlafzimmer sind von Natur aus abgeschieden und sowohl Kinder als auch Eltern haben Zugang zu ihren eigenen Badezimmern.


