Trend-Pulpet

                                             
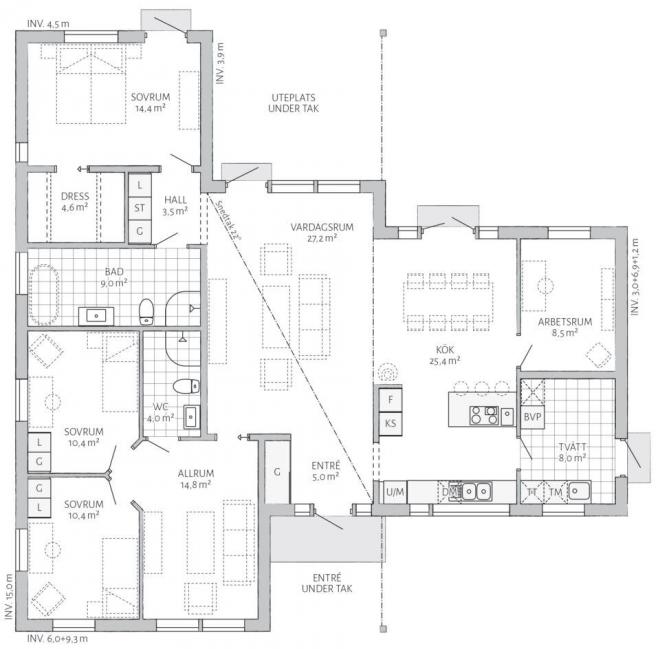
Trend setzt auf seinen "funktionalen Spirit" und verfügt über einen spannenden und durchdachten Grundriss. Im Inneren ist Trend hell und einladend mit großzügigen, raumhohen Fenstern, die das Licht in großen Teilen des Hauses verteilen. Das Wohnzimmer ist zentral gelegen und bietet viel Platz für Gemeinschaft und Entspannung. Von hier aus gelangen Sie direkt auf eine geschützte Terrasse.

 

Hausfakten

  • 0
    Geschosse
  • 0
    Zimmer
  • 0m²
    Wohnfläche

Diese Internetseite verwendet Cookies, um die Funktionalität und den Inhalt zu optimieren. Durch die Nutzung unserer Website wird der Verwendung von Cookies zugestimmt. Weitere Informationen zu Cookies und der Verwendung Ihrer Daten erhalten Sie in unserer Datenschutzerklärung.

Einstellungen