Tallåsen
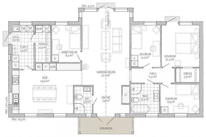
Tallasen ist ein typisch schwedisches Einfamilienhaus. Die Bauweise entspricht sowohl der klassischen als auch der modernen Bautradition. In Schweden gehört dieser Bungalow zu den meistverkauften Häusern. Durch die Mitte des Hauses verläuft eine Kathedraldecke, die zweifellos das Highlight des Hauses ist. Der Wohnbereich wird, über die großen Fensterflächen, lichtdurchflutet und erzeugt eine Atmosphäre des exklusiven Wohnens.


