Sandliden
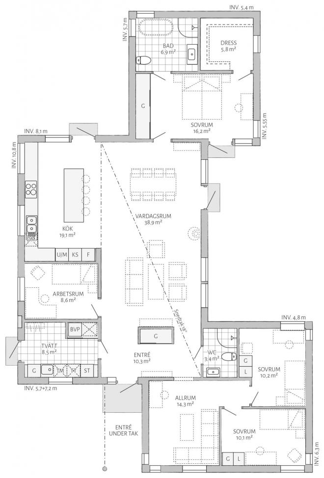
Dieses moderne eingeschossige Haus besteht aus drei Hauskörpern die für eine besondere Optik sorgen. Durch die im Versatz angeordneten Baukörper ergeben sich zahlreiche Gestaltungmöglichkeiten der Fassade und der Terrassen. Wählen Sie eine verputzte Fassade, für eine modernere Wirkung, oder einen eher klassischen Stil mit Holzverkleidung. Auch farbige Fensterahmen stehen diesem Haus gut und unterstreichen das Besondere dieses Entwurfes.


