Ramsjö
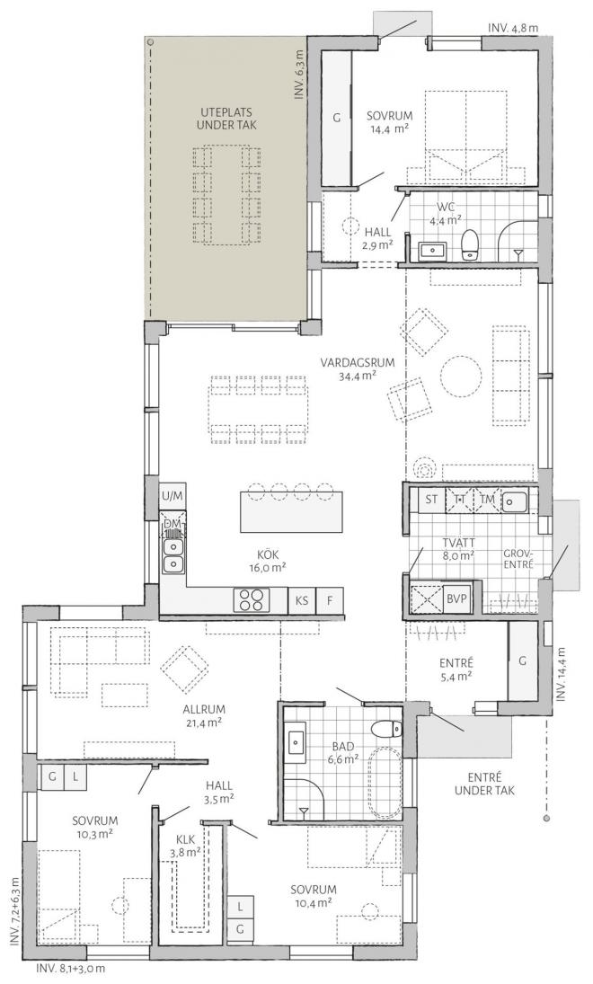
Dieser moderne, minimalistische eingeschossige Entwurf erinnert an den berühmten Bauhausstil von Walter Gropius. Dass auch heute noch, nach über 100 Jahren Bauhaus, dieser Stil aktuell ist zeigt Ramsjö sehr eindrucksvoll. Als Inbegriff der Moderne begeistert diese Architektur immer mehr Bauherren. Klare Linien, minimalistisches Design und die klare Formensprache geben diesem Haus seine Prägung. Die Fassadengestaltung aus Putz und Holz, unterstreicht diesen Eindruck und bedient diese zeitlose Architektur hervorragend.


