Karlsö
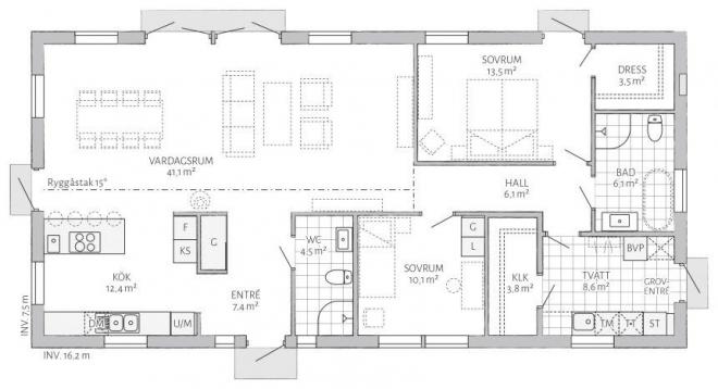
Was dem klassischen eingeschossigen Haus an Quadratmetern fehlt, wiegt es mit Raffinesse und Charme auf. Es mag das kleinste Haus im Katalog sein, dank der offenen Raumaufteilung und der Möglichkeit, weitere Schlafzimmer zu planen, wirkt es vom Gefühl und von der Atmosphäre her jedoch wesentlich größer. Der klassische Stil und die Größe sind ideal für eine kleine Familie oder zur Nutzung als Ferienhaus. Küche und Wohnzimmer bieten Weite und Offenheit, und der Lichteinfall aus drei Himmelsrichtungen trägt zu viel natürlichem Licht bei. Je nach Belieben kann man zwischen Satteldach oder Pultdach wählen.


