Harmoni
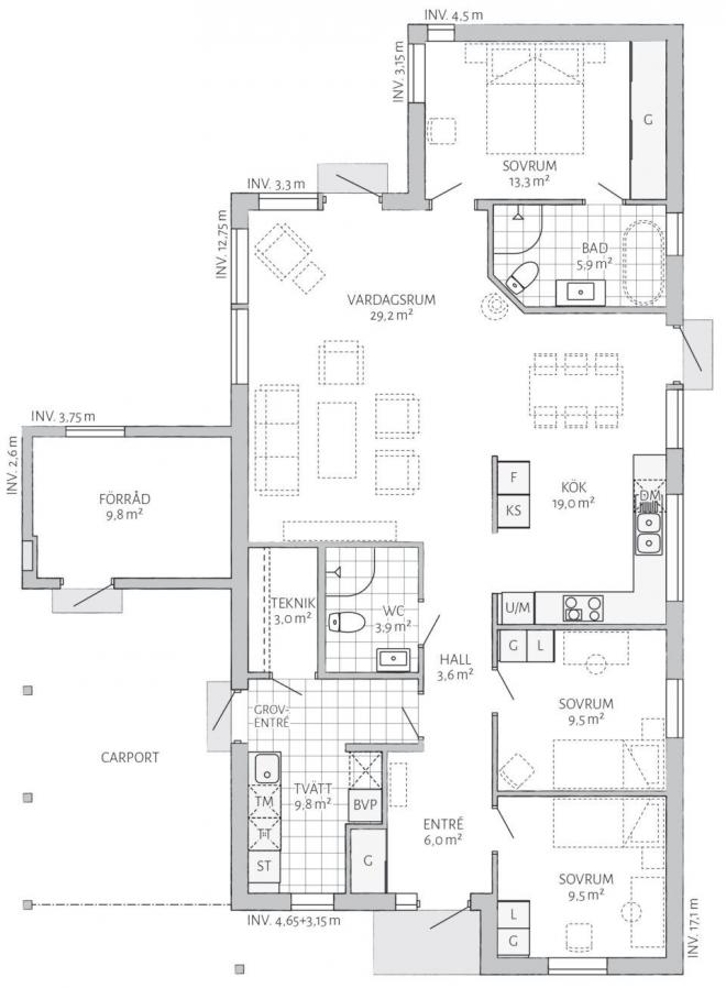
Harmoni ist ein modernes Giebelhaus für schmalere Grundstücke. Der Eingang ist überdacht und es gibt einen groben Eingang neben dem Carport. Im vorderen Teil des Hauses befinden sich zwei Schlafzimmer und eine große Waschküche mit begehbarem Kleiderschrank. Durch den Flur gelangen Sie in ein großes Wohnzimmer, das Ihnen in Kombination mit der offenen Küche viel Arbeitsfläche und Platz für geselliges Beisammensein bietet.


