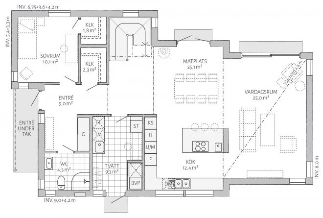
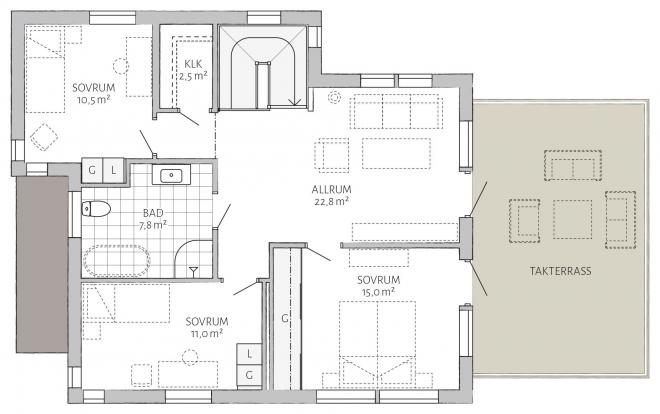
Solberga
Der hier im Bauhaus-Stil vorgestellte Entwurf setzt Maßstäbe; modern, funktional und schlicht. Klare Linienführungen und geometrische Proportionen sind, bei den Anhängern dieser Architektur, nur zwei von vielen Gründen sich für dieses moderne Haus zu entscheiden. Die unterschiedliche Farbgebung der Fassade unterstreicht die kubistische Form der Baukörper mit dem typischen Flachdach. Eine atemberaubende, zeitlose Architektur für Individualisten.


