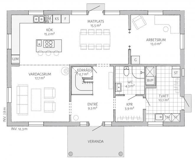
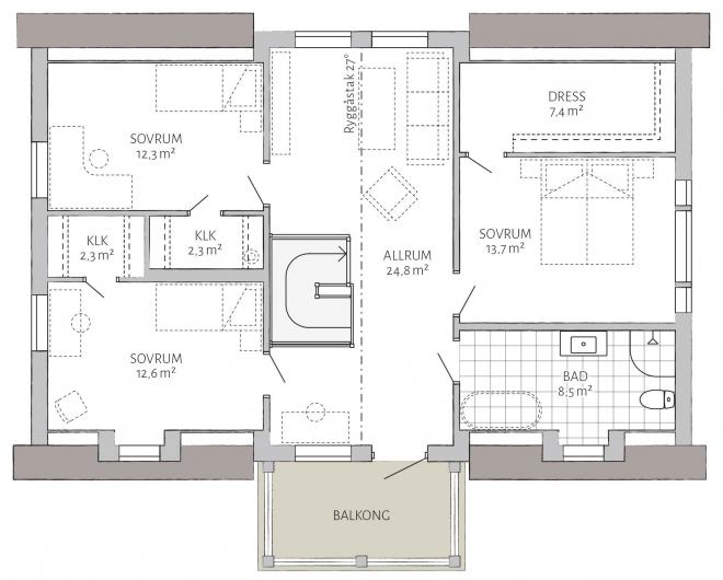
Sätesgården
Ein Haus mit langer Geschichte. Der Baustil entstand in den ersten Jahrzehnten des 19. Jahrhunderts und wurde für repräsentative Grundstücke, gut situierter Städter, entwickelt. Für diese Zeit bezeichnend ist, die spezielle Ausführung der Fenstereinfassungen, das Mansarddach sowie der Eingangsbereich mit Säulen und darüberliegenden Balkon. Ein Entwurf der auch in unserer modernen Zeit viele Liebhaber hat.


